在线留言网站地图收藏铂锐联系铂锐

欢迎来到铂锐(上海)汽车科技有限公司官网! 专注提供汽车维修车间的规划设计、汽修设备工具配套供应及服务!

汽车维修车间整体解决方案提供商一站式汽车维修设备工具配套供应

服务热线:400-139-1969
17717926395

铂锐助力汽修店提升运营与工作效率

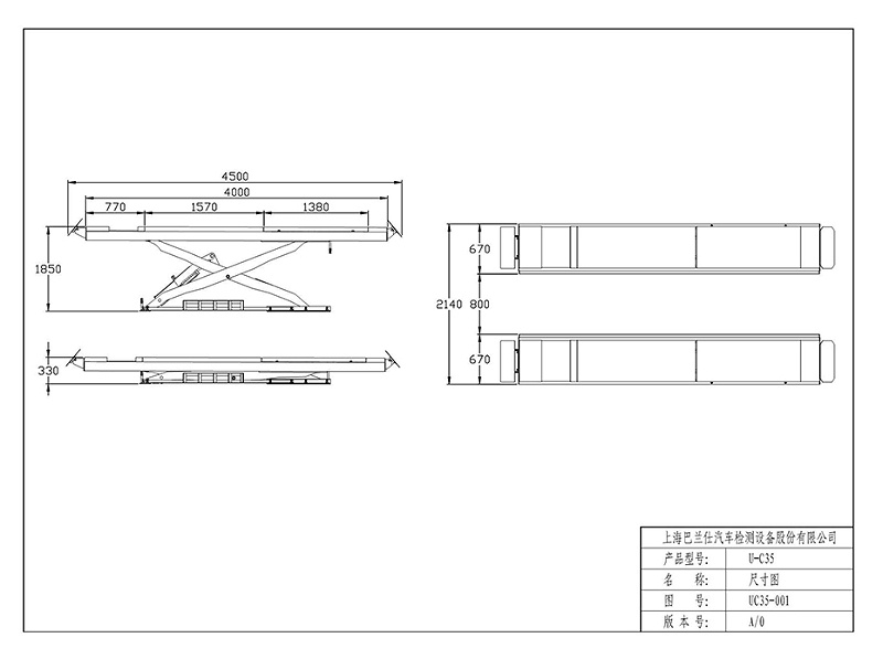
优耐特 U-C35 举升机地基图

返回列表 来源: 发布日期: 2020.10.26 浏览次数:2000

优耐特U-C35单层大剪地基图_页面_1

优耐特U-C35单层大剪地基图_页面_2

咨询热线

400-139-1969