解决方案
配套产品
技术服务
铂锐首页
规划设计
解决方案
配套产品
技术服务
成功案例
汽保天地
培训中心
关于铂锐
联系铂锐
400-139-1969
立即咨询
建站清单
成功案例
4S店
汽修连锁
汽修店
汽修院校
汽保天地
铂锐新闻
品牌优选
建站清单
汽保小知识
合作客户
四类品牌
自主研发品牌
总代理品牌
代理国外品牌
授权国内品牌
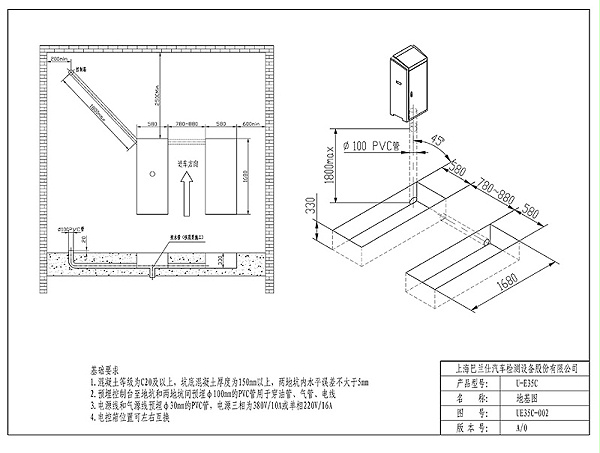
优耐特 U-E35C 举升机地基图
返回
列表
上一条
优耐特 U-E35 举升机地基图
下一条
优耐特 U-E30 举升机地基图